Vai al contenuto
MD©
design, rome
Chiudi
chiuso
BLOG MAP
Menu
esteso
facebook
instagram
linkedin
pinterest
tumblr
twitter
you tube
wix website
Immagine precedente
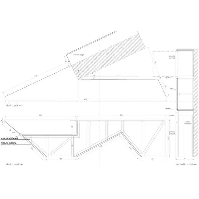
technical11
disegni costruttivi per il desk-vetrina del corner shop
Navigazione articoli
Pubblicato in
allestimento museale della sede dell’A.S.I., rome, 2017-18
Lascia un commento
Cancella risposta
Δ
Abbonati
Abbonato
MD©
Unisciti ad altri 30 abbonati
Registrami
Hai già un account WordPress.com?
Accedi ora.
MD©
Abbonati
Abbonato
Registrati
Accedi
Copia shortlink
Segnala questo contenuto
Visualizza articolo nel Reader
Gestisci gli abbonamenti
Riduci la barra