Vai al contenuto

MD©

design, rome

  • BLOG MAP
  • facebook
  • instagram
  • linkedin
  • pinterest
  • tumblr
  • twitter
  • you tube
  • wix website

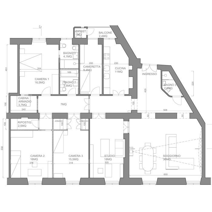
intervento di ristrutturazione di un grande appartamento con particolare attenzione al mantenimento di dettagli e finiture originali
intervento: trasformazione edilizia, nuovi impianti e disegno dei mobili
project: Mattia Darò
200mq – 120k €

ante operam
ante operam
post operam
post operam
render_ingresso1
render_ingresso2
render_soggiorno
foto_soggiorno
rmobilesoggiorno_01_re
foto_soggiorno2
foto-varco-soggiorno
foto-stucchi
pianta pavimentazioni
pianta pavimentazioni
foto_pavimentazioni
foto-parquet-mostra
foto-stucco-ingresso
foto-stucchi-soffitto
foto-camera-marmo
render_bagno
foto-bagno2
foto_doppiaporta
foto-portamaniglia
foto-portainterruttore
foto-interruttore

 

Condividi:

  • Condividi su Facebook (Si apre in una nuova finestra) Facebook
  • Condividi su X (Si apre in una nuova finestra) X
  • Condividi su LinkedIn (Si apre in una nuova finestra) LinkedIn
MD©, Blog su WordPress.com.
  • Commenta
  • Abbonati Abbonato
    • MD©
    • Unisciti ad altri 30 abbonati
    • Hai già un account WordPress.com? Accedi ora.
    • MD©
    • Abbonati Abbonato
    • Registrati
    • Accedi
    • Copia shortlink
    • Segnala questo contenuto
    • Visualizza articolo nel Reader
    • Gestisci gli abbonamenti
    • Riduci la barra

Caricamento commenti...