“campus tremens” university island competition, venice, 2016
Competition organization: YAC
Year: 2016
Project team: Mattia Darò con Chiara Amato, Carol Ciccarelli

tavola
panel

scattered spaces
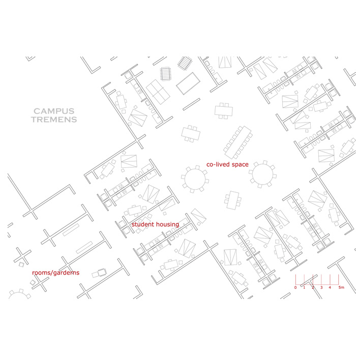
The campus project includes a fragmentation of spaces into cells / rooms, in a continuity between inside and outside, where there are organized the various activities of the campus that space from collective activities (university spaces) and private activities (accommodations). This sort of maze, formally enhances the connection between the areas, with the desire of becoming able to re-imagine the island as a real space that holds together nature and built spaces, all drawn in one unifying image.

CONTINUES FLUXES
The campus is imagined as one walkable space, where there is the possibility to live in areas with no size limit, passing from private sectors to public ones, seamless. This aspect clearly interests also the soil that, in fact, alternates paved areas and natural ones in a intersperse and unexpected way. The flows are therefore essential to tie areas with different functions, emphasizing the idea that they are part of a complex and single organism.

CO-LIVED SPACES
The system of the campus spaces provides the creation of common spaces, areas destined for collective functions and for convivial activities. These areas are divided into three categories:
1. areas where you can spend time studying (classrooms, workshops) or for leisure activities (shows, sports) that are obtained both in the old buildings and in the new ones.
2. “private” courtyards that are confined with the private spaces of the students dormitories (established in groups of 16), a sort of “familiar intimate” spaces.
3. the rooms/gardens, intended as “extra rooms” that create spaces to stay in the open air, to study, to have social relationships and leisure moments.

shelter(ing)
The island represent, since the begging of time, a world of it’s own, a sort of “sanctuary” defined in it’s own boundaries. Thanks to this special identity, it becomes very interesting the idea of allocating the theme of the university campus in the island of Poveglia, building also an intention of creating a “utopia-campus”. This inspiration, thanks also to the project plan, has set in motion a specific imagery that has translated into spaces and forms clearly and deliberately repeated regulary, emphasizing the imagery evoked.

relationship of new/old

The comparison between existing buildings, is strongly supported and used, in order to maintain an image of the past that is confronted with a new future. In the existing buildings are located many of the functions dedicated to the studying and the university activities (classrooms, library, canteen, offices…) in a sort of small reconstructed elements inside the old ones. All the existing pavilions, from the external skin that include the walls, are reused as relics necessary to dampen the fabric of the new elements, both from an aesthetic point of view and also to create points of spatial friction between the various functions, the numerous buildings and the in balance spatially that also include the outsides and insides.