Nuovo episodio “ossessioni”, come parlarsi addosso tentando di dare meno fastidio possibile. Ho inaugurato una nuova bacheca (così si dice) su Pinterest, che si chiama “Beautiful Plans”.
Di nuovo cito Pinterest, devo dire che al momento è uno dei miei social preferiti assieme a WordPress e Youtube, un social che in questo periodo riesce ad essermi d’aiuto e ad apportare delle agevolazioni al mio lavoro. Insomma per capirsi nel mentre sto lavorando a un progetto con meticolosa attenzione alla pianta (e per questo non c’è niente di meglio che guardare e studiare con attenzione i progetti degli altri). Da sempre tra i disegni di architettura che preferisco ci sono le piante, perché a mio avviso sono l’iconografia del comporre l’architettura. Non che sia contrario a un progetto che nasce per fattori puramente estroversi (ad esempio l’impatto urbano/paesaggistico) e che poi risolva le piante in modo più canonico (vedi il post su Poelzig), ma rimango molto attratto dalla forza sintetica di una pianta e nel capirne, rintracciarne la sua forza nel concepire alcune soluzioni a seconda del programma dato.
Ho quindi creato questa bacheca dove sto collezionando alcune piante che più mi stimolano quanto detto prima. Va detto che questo tipo di approccio progettuale dove a mio avviso testa e disegno tecnico vanno di pari passo definisce una coerenza metodologica nella capacità compositiva/progettuale che ha un carattere scientifico, a prescindere dalle qualità degli autori e a prescindere dal momento storico in cui sono state ideate (per quanto per ora ho selezionato solo piante tra il periodo tardo moderno e oggi dove a mio avviso si è tentato, anche per la crescita delle scuole di architettura in tutto il mondo, di trovare sempre più una chiara metodologia in un tema borderline come la progettazione).
Per esplicitare questo ho selezionato alcune piante collezionate:
Sky house, Kiyonori Kikutake, 1958

Considero questa casa la madre spirituale dell’architettura giapponese contemporanea. Incredibilmente radicale nell’essere concepita come struttura, spazialità interna, la ritroviamo come un modello nei lavori di SANAA, Sou Foujimoto, e tutta la scuola giapponese, così ampia in particolar modo sul tema dell’abitare. Scuola che ambisco a dire porta avanti la grande modernità lecorbuseriana, depurata delle tentazioni artistiche del maestro, e tutta tesa verso una sorta di “estasi della forza del programma spaziale”.
Casa Antonio Carlos Siza, Alvaro Siza, 1976-78

In una raccolta di piante non può mancare Alvaro Siza. A mio avviso, campione mondiale di concezione di pianta d’architettura. Modernamente ortodosso e antico nel concepirle, allo stesso tempo ironicamente post moderno nel saper scombinare il piano del linguaggio per un pubblico raffinato e di addetti ai lavori. E questa pianta, a mio avviso, è un capolavoro. Notare: la forma della pianta (casa) raggomitolata su se stessa intorno ad un anfratto di corte, il blocco servizio, elemento a sé che scardina la figura a “C”, alcuni tracciati visivi (aperture/finestre) che diventano segni, muri e nuove giaciture, alcuni elementi classici, direi ortodossi, come i bow window o il camino canna fumaria…. applausi.
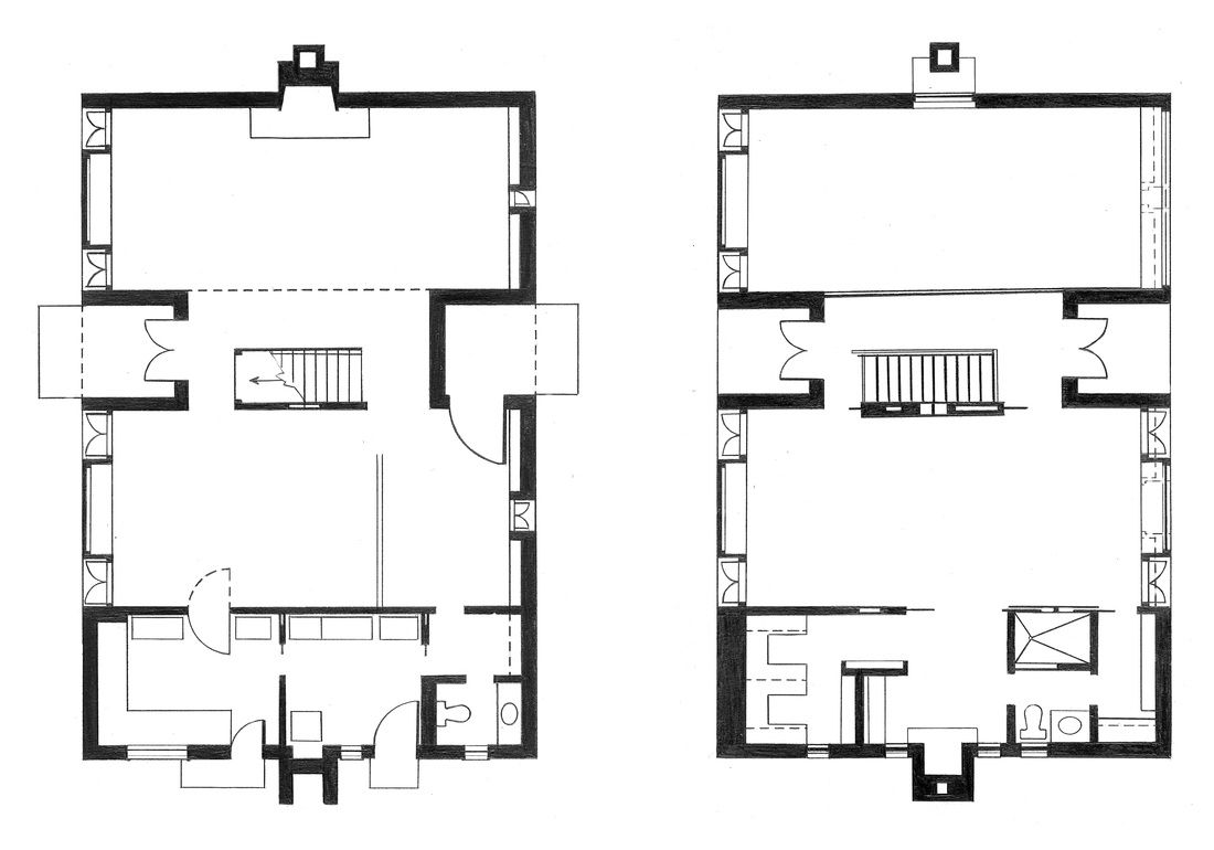
Casa Esherick, Louis Kahn, 1961

Se c’è un grande maestro delle piante, o meglio del riconoscere nel disegno di una pianta un pensiero programmatico dell’attività ospitata, questo è Louis Kahn. Sì spazi serviti/spazi serventi ma non è sufficiente a farci capire il processo intrinseco di Kahn: ovvero il riflettere dell’architettura su se stessa nel momento dell’essere generata. Tutto nasce da se stessa e da un suo cercare e trovare delle regole per autolegittimarsi, paradossalmente senza neanche più confrontarsi con l’esterno. Da qui a mio avviso (ma non solo mio) è nata l’architettura contemporanea, l’architettura sanamente o no fine a se stessa.
E si guardi Ridolfi di casa Lina, pianta ossessiva, o il progetto del Museo del Cinema di Venezia di Steven Holl, rilettura cavernicola del centro congressi di Kahn sempre per Venezia, o ancora la “casa senza qualità” di O.M.Ungers…