Vai al contenuto

MD©

design, rome

  • BLOG MAP
  • facebook
  • instagram
  • linkedin
  • pinterest
  • tumblr
  • twitter
  • you tube
  • wix website

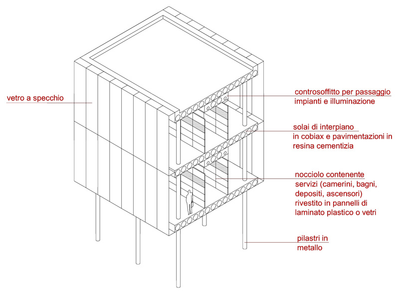
ZARAfolie_prog

ZARAfolie
[il progetto]

link to precedent post

Condividi:

  • Condividi su Facebook (Si apre in una nuova finestra) Facebook
  • Condividi su X (Si apre in una nuova finestra) X
  • Condividi su LinkedIn (Si apre in una nuova finestra) LinkedIn
MD©, Blog su WordPress.com.
  • Commenta
  • Abbonati Abbonato
    • MD©
    • Unisciti ad altri 30 abbonati
    • Hai già un account WordPress.com? Accedi ora.
    • MD©
    • Abbonati Abbonato
    • Registrati
    • Accedi
    • Copia shortlink
    • Segnala questo contenuto
    • Visualizza articolo nel Reader
    • Gestisci gli abbonamenti
    • Riduci la barra

Caricamento commenti...