allestimento museale della sede dell’A.S.I., roma, (progetto) 2017-18
allestimento galleria espositiva presso la sede dell’agenzia spaziale italiana, roma (realizzato) 2017
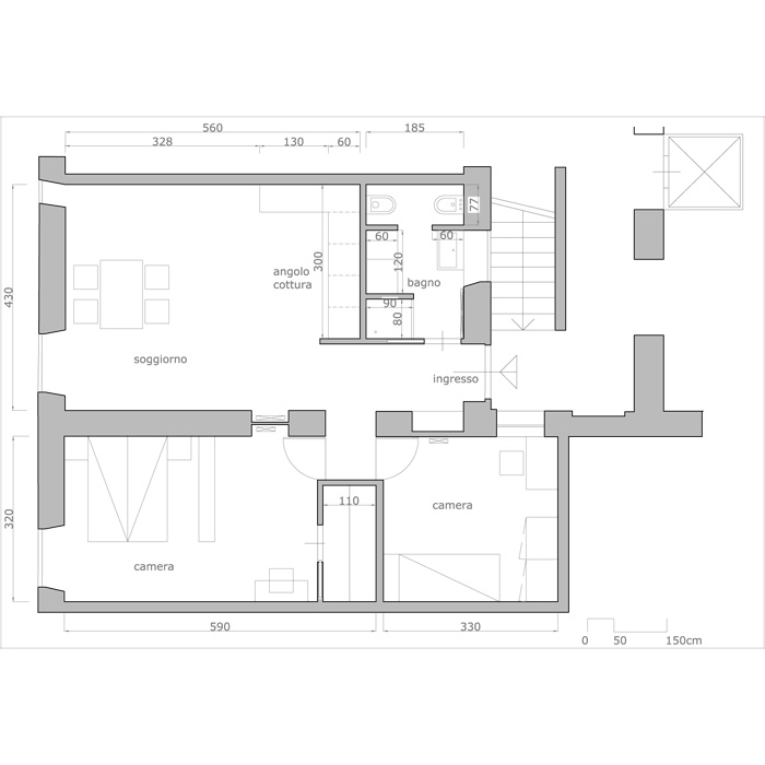
appartamento in via calabria, roma (realizzato) 2016
appartamento a corso italia, roma (realizzato) 2012-2014
appartamento tra terracina e sperlonga (realizzato) 2012-2013
appartamento a testaccio, roma (realizzato) 2012
appartamento a san lorenzo, roma (realizzato) 2009-2010
appartamento a piazza fiume, roma (realizzato) 2009
appartamento a prati, roma (realizzato) 2007-2008
appartamento a parigi (realizzato) 2007







