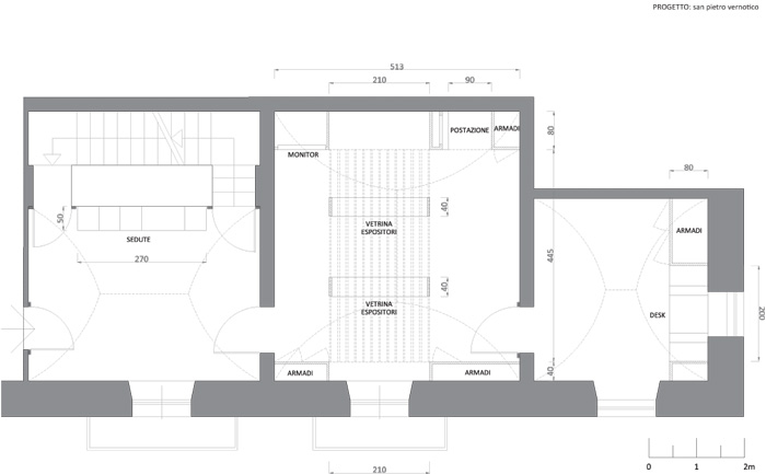
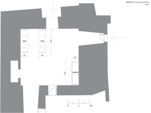
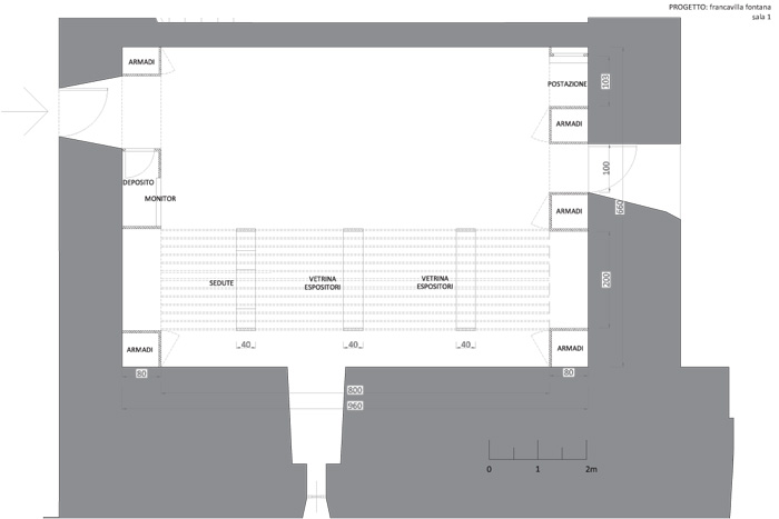
Centri di informazione turistica del territorio del G.A.L. “Terra dei Messapi”
Ente banditore: G.A.L. “Terra dei Messapi”
Anno: 2014
Progetto: Mattia Darò, Diego De Conca, Francesco Paolo Costantini

L’idea progettuale prende forma dalla volontà di definire un nuovo modo di utilizzare gli ambienti interni delle sedi che ospiteranno gli info-point, offrendo: al personale la possibilità di “modellare” lo spazio a disposizione in alternative configurazioni spaziali secondo molteplici necessità, al fruitore la facoltà di conoscere gli aspetti storico-culturali del territorio e di apprendere le necessarie informazioni per muoversi autonomamente all’interno dello stesso.
Alla base del ragionamento, la volontà di non limitare l’offerta degli info-point alla sola funzione informativo-turistica −comunque ben presente nel progetto proposto−, ma interpretare lo spazio ad esso adibito come frazionabile ed espandibile secondo svariati utilizzi. All’interno dello stesso ambiente potrebbero trovare luogo differenti momenti (espositivi, educativi, d’intrattenimento) che coinvolgano anche la cittadinanza in proposte per la promozione del territorio a livello turistico, ricettivo, culturale e in iniziative di natura commerciale per la diffusione della produzione regionale.

01

02

03

04

05

06

07

 

08

09

10

11

12

13

14

15

16

17

18

19

20

21

22

23

24