Bistrattati, denigrati, annichiliti dagli open space.
Occorre rivalutarli a prescindere, anche solo per partito preso.
Eppure chi non ha una paura ancestrale che riguarda un corridoio, un ripostiglio, un anfratto?
Quel cunicolo lungo dove alle volte neanche si vede la fine.. oscuro, da cui la nostra immaginazione partorisce mostri e uomini neri.
La dimensione psichica del corridoio merita attenzione anche nella sua dimensione negativa.
Il tecnico illuminato dice che ruba spazio, la verità è che fa paura.
Il corridoio va amato in quanto spazio di percorrenza che ti porta da un ambiente ad un altro, come spazio indefinito degli incontri, della funzione da inventare.
corridoio verso la sala da balloimpianto a corridoi della chen clan academy bivio dei corridoi della prigione di cherry hillcorridoio del hospital for insane army and navy del Kirkbride planpianta della prigione di cherry hillmonastero di buxheimincisione storica de la grande galerie del louvresezione del narkomfin di ginzburgpianta e sezione dell’unità d’abitazione di marsiglia di corbudalla sezione “Corridor” di Elements of Architecture di Rem Koolhaas, Taschen o da internet
A proposito di psico-corridoio, alcune immagini di corridoi, che rappresentano la dimensione psichica dei protagonisti, da due maestri del cinema Kubrick e Lynch):
Partiamo da un dato: ogni casa non può durare più di 10 anni, casa nel senso molto ampio del termine, che prescinde da questioni tecniche, di spazio, professionali, ovvero un progetto abitativo esistenziale.
Se Extreme Cohousing Program si fondava sull’estremizzazione della casa iperfunzionalista con estetica assolutista volta al dinamismo e alla massima condivisione degli spazi.
Extreme Chinese Shop As Home si fonda sul concetto di utilizzare lo spazio anche in modo inutile, intenderlo come indefinito (informale nella sua essenza), la casa dello spreco.
Scelte in opposizione, per esemplificare in tipi di spazi: no ingresso versus ampio ingresso.
Per questa ragione il suo modello, che da il titolo al progetto, è proprio lo spazio fisico e percettivo del negozio cinese, in cui entri e non sai dove arrivi (ti perdi per ritrovare l’uscita) e ti sembra di essere sempre in un grande caos visivo pieno di cose (anch’esse indefinite).
Come Jack Burton quando da un ingresso qualunque si ritrova in un dedalo di corridoi e cunicoli segreti sotterranei per ritrovarsi nel palazzo di Lo Pan, nel film di John Carpenter “Grosso guaio a Chinatown”: ambire ad una casa sorpresa, che, anche a livello visivo, non ti rivela mai la sua “bellezza” (guarda che soggiorno, che vista magnifica, che bel tavolo) ma ti cattura proprio nella sua inafferrabilità.
Schizzi e immagini a corredo:
ampio ingresso con diverse opportunità di varchi corridoio articolato che crea una “S”fotogramma di “Grosso guaio a Chinatown”foto del set di “Grosso guaio a Chinatown”tra gli scaffali in un negozio cinese
Il paper pubblicato sull’istant book “Cohousing. Programmi e progetti per la riqualificazione del patrimonio esistente.” A cura di Adolfo F.L. Baratta, Fabrizio Finucci, Stefano Gabriele, Annalisa Metta, Luca Montuori, Valerio Palmieri, edizioni ETS, 2014
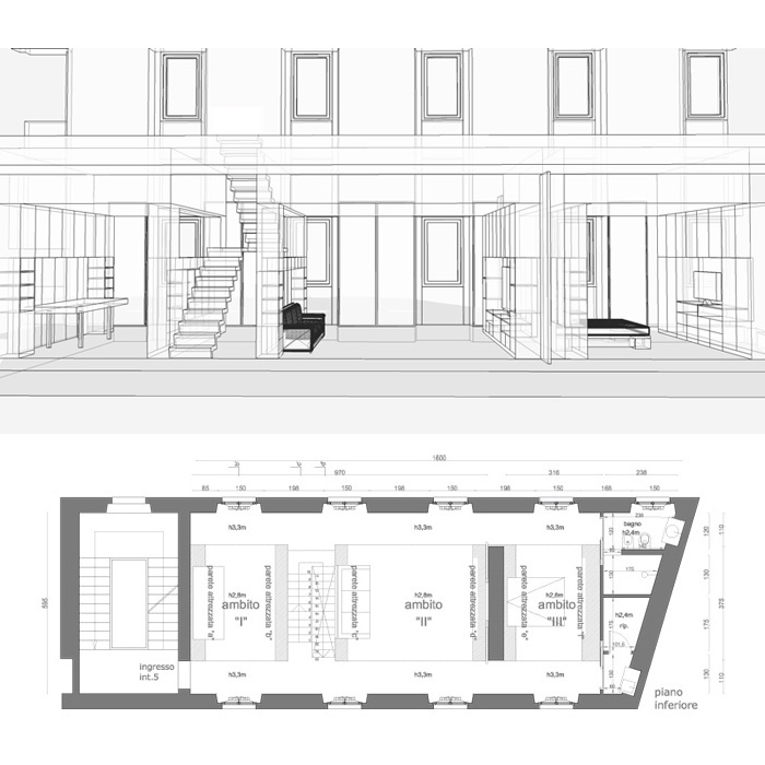
“raddoppio casa”: da grande soggiorno, studiolo, camera padronale e camera singola, bagno e cucina aggiungi studio/atelier, home theatre, camera ospiti, camera da bagno (“post-occupancy apt.”)
intervento: trasformazione edilizia, nuovi impianti e disegno dei mobili
project team: Mattia Darò, Umberto Cao
realizzazione mobili: RivaViva
240mq – 250k €
foto d’autore di tracce di vita post realizzazione (ph. Francesco Nicolò)
Questo progetto è risultato vincitore del primo premio per la categoria “architettura degli interni” dei premi romArchitettura, sesta edizione, 2017, promossi da INARCH Lazio, Ordine degli Architetti di Roma e Provincia, ACER
i ringraziamenti per il premio
i ringraziamenti per il premio
foto di gruppo di tutti i vincitori della 6° edizione dei premi romArchitettura
foto ricordo dei premiati della categoria “architettura degli interni”
Il progetto è stato inoltre esposto in numerose mostre internazionali di architettura e design:
-Mostra collettiva “Arte e Design. Docenti Talenti” organizzata da IED e Temple University presso la Gallery of Art della Temple University in Roma, 2015
locandina “Arte e Design. Docenti talenti” 2015
-XV Triennale Internazionale di Architettura INTERARCH 2018 di Sofia
locandina Interarch 2018, Triennale di Sofia
-Esposizione “Arquitectos romanos en el Mundo” a Bogotà, Colombia, promossa dalla Sociedad Colombiana de Arquitectos e l’Ordine degli Architetti di Roma e Provincia, 2019
locandina Arquitectos Romanos en el Mundo, Sociedad Colombiana de Arquitectos y Colombia
-“ArquitectosRomanos en el Mundo” presso Edificio San Francisco de Asis – Universidad CESMAG – San Juan de Pasto, 7-11 Ottobre 2019
locandina Arquitectos Romanos en el Mundo, Universidad CESMAG
5 anni dopo (nel 2019) ci siamo ritrovati per un incontro/confronto tra progettisti e proprietario per chiacchierare sulla nuova casa, le nuove abitudini, come ci si vive, preparando una nuova pubblicazione dedicata al progetto.
uno stralcio della conversazione
Scorcio con la poltrona Nemo di Fabio Novembre in primo piano e con il cactus Gufram di Guido Drocco e Franco Mello sullo sfondo