Lezione di apertura del corso Design 4 (in lingua inglese) presso IED Design di Roma, il primo corso che conduce alle tesi del corso di laurea in Interior Design, a.a.2019-20.
Tema generale di tesi: un pop up store Venchi da collocare in un mall di Chengdu, Cina.
Abbiamo parlato di Hyper-Globalization, la fase più acuta, più radicale del processo di globalizzazione che si intende cominciata intorno al 1990 vista come un vero e proprio modo di vivere.
La globalizzazione, che è un fenomeno che viene da lontano, non ha comportato solo delle dinamiche economico/culturali sulla società, in una continua e determinata ricerca di semplificazione degli scambi al di là delle distanze geografiche ma ha cambiato e modellato il nostro modo di vivere, in particolar modo tentando di farci assumere un profilo definito con particolare attenzione per le nostre esperienze, “marketizzabili”. Il culmine è forse l’esperienza dei social network in cui la nostra vita personale diviene un prodotto di marketing, rielaborata dagli algoritmi per assumere una sua identità comunicativa. La comunicazione precede la realtà, vendiamo le nostre esperienze.
Come può Venchi immettersi in questi scenari globali e vendere l’esperienza del gelato in modo ancor più determinato?
Qui il LINK allo slideshow della lezione.
In questa prima fase del corso la classe produrrà un unico WILD BOOK (formato A5 verticale) che fisserà i presupposti teorici del progetto sulla base delle ricerche di ogni singolo alunno o raggruppamento di alunni.

Tra le discussioni con la classe si è parlato di italian life style ad esempio comunicata da questo spot di Molinari Too much
“Italiani, cosa avete? Quando parlate siete esagerati. Con le ragazze siete esagerati. Con i ragazzi siete esagerati. Avete un volume esagerato, una passione esagerata, uno stile esagerato. Italiani siete esagerati ed è per questo che vi amiamo.“
presentazioni pubbliche (slideshow)
DID YOU SAY ICE CREAM? group 1 (abdel-cheng)
A WALK FROM CHOCOLATE TO HEART group 2 (matthew-ganarz)
SWEET DREAMS group 3 (barelli-richter)
ALL’ITALIANA group 4 (costa)
CONSCIOUS LIVING group 5 (futoma)
[tema di tesi personale sul “turismo esperienziale in contatto con la natura”]
ed ecco l’oggetto CLASS WILD BOOK!!
Il lavoro di tesi prosegue nell’elaborazione del progetto con il Prof. Vincenzo Di Siena, qui le presentazioni nella giornata di confronto dei lavori in corso delle tesi Venchi tra laureandi di interior e product:
Evoluzioni nei progetti di tesi
Nourhan Abdel Halim Ziye Cheng (group 1)

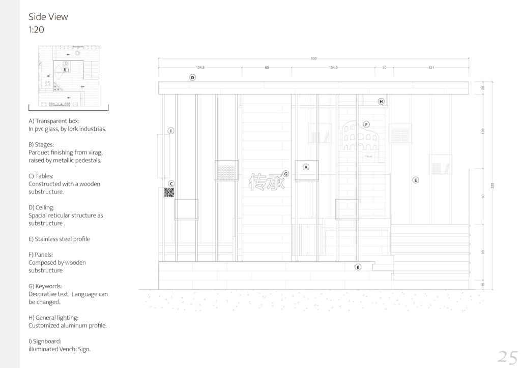
disegno tecnico del profilo 
render e presentazione della personalizzazione del pop-up store attraverso “scritte decorative”
Valentina Costa (group 4)

schema assonometrico 
render finale
Maria Beatrice Barelli Raffaella Ricter (gruppo 3)

foto del modello poetico 
render finale
Futoma (gruppo 5)

Open Render 
Close Render









































